проект бани 5х6 брус 150 на электронку
Этот лот уже не продается, но мы нашли для вас похожие
Начальная цена
1 руб.
Блиц-цена
3 000 руб.
Торги не состоялись(16 мая 2026 06:09)
1 человек минимальное кол-во участников торгов
Описание
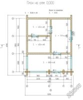
Проект бани 5*6, брус 150. В проекте присутствуют разделы АР и КД, проект полностью подготовлен для запуска производства сруба-конструктора, а так же для сборки на фундаменте, либо же завоз пиломатериала по ведомостям из проекта, и изготовление на месте. проект более 100 страниц. приветствуется обмен
- строительство без проекта- дольше и дороже: своевременность поставки материала, затраты на доставку, простой рабочих.
+ строительство по проекту - быстрее: не возникает вопросов сколь чего привезти и расчесывания затылка как это собрать.
- строительство без проекта - дороже и дольше: большой шанс "накосячить", разбирать, переделывать.
+ строительство по проекту - "подводные камни" прорабатываются на стадии чертежа.
- строительство без проекта- дольше и дороже: своевременность поставки материала, затраты на доставку, простой рабочих.
+ строительство по проекту - быстрее: не возникает вопросов сколь чего привезти и расчесывания затылка как это собрать.
- строительство без проекта - дороже и дольше: большой шанс "накосячить", разбирать, переделывать.
+ строительство по проекту - "подводные камни" прорабатываются на стадии чертежа.
Поделиться этим лотом:


